
Calcio
Simone Ceri attacca durissimo: “Pensate alla città!”
GROSSETO. In una nota ufficiale il presidente del Roselle, Simone Ceri, esprime tutta la sua rabbia per le difficoltà che sta incontrando per realizzare il suo progetto.

Ecco il comunicato:
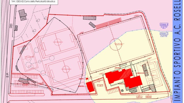
<<È difficile scrivere quando la rabbia ti crea il tremito…quando la bile ti scoppia…quando ti rendi conto che per certi ometti l’unica medicina sarebbero le botte. Al peggio non c’è mai fine…certa gente non conosce vergogna. Ed il loro pensiero fisso, ora come ora, è capire come sono orientati i Ceri per le prossime elezioni. Al rischio, più che rischio una quasi certezza ormai, di far perdere alla Città l’opportunità di veder potenziato gratuitamente il proprio patrimonio impiantistico Sportivo, neanche un pensiero, un accenno. Gente malata…accecata dalla necessità di mantenersi la propria poltrona fregandosene altamente di come andranno le cose alla Città. Quanto scritto stamani sul Tirreno è roba trita e ritrita, affrontata un mese fa dalla proprietà dell’AC Roselle con il Sindaco Bonifazi ed l’Arch. De Bianchi per il Comune. Quello che è stato scritto stamani, ovvero che ci sarebbe forse la possibilità di costruire nel lembo di impianto non interessato al vincolo idraulico è già stato attuato come mostrato agli interlocutori in quell’incontro e evidente dall’immagine, apportando una modifica nella ubicazione dell’immobile. Relativamente al bando, poi, c’è da specificare che ancor prima che fosse stilato si tenne un incontro (febbraio 2015) nell’ufficio dell’Ing Vecchieschi in Viale Sonnino alla presenza della Dott.ssa Cartaginese, il Geom. Gabbiani e Dott Fornasiero per il Comune Simone Ceri, M Tassi e Geom Mazzarello per l’AC Roselle. Quell’incontro fu fatto allo scopo di evidenziare in anticipo eventuali problematiche che avrebbero potuto riguardare eventuali investimenti e miglioramenti dell’impianto. In quella sede, vincoli non esistevano, niente vincolo idraulico, niente problema parcheggi, niente problema per le cubature. Cosa è successo dopo dovrebbe spiegarcelo la politica, subdola, schifosa e arrivista. Perchè tutti questi problemi siano usciti fuori dopo e non prima dovrebbero spiegarcelo gli uffici…forse gli assessori. Ma di quanto siano vili certi personaggi ne è la prova che all’invito del Pres Simone Ceri ad avere un confronto pubblico non ha aderito nessuno. Così come all’ufficio urbanistica, non hanno voluto spiegare perchè, pur essendo il bene di utilità pubblica, non si è voluto abbreviare gli iter per approvazione della variante. Per noi la risposta è chiara ed è da ricercarsi nella divisione interna al PD tra Borghiani e anti. L’AC Roselle si è trovato in mezzo… ed ha visto il Suo progetto tritato. Bravi, bravi davvero, perchè prima di tutto avete pensato all’interesse della collettività, della frazione di Roselle…di quella merda di patrimonio sportivo obsoleto e maltenuto che il Comune possiede. E che continuerà a tenersi se le teste saranno ancora queste. Mi spieghino lor signori come hanno potuto dall’ente autorizzare in questi anni lo svolgimento della sagra che si teneva proprio nella parte di impianto interessata dal rischio idraulico 4, ci spieghino come mai tra il 17 ed il 21 marzo, in 4 giorni, la variante è passata e passerà per commissione consiliare prima e Consiglio Comunale dopo…dopo aver atteso tre mesi senza che si muovesse foglia. Abbiate il coraggio delle Vostre azioni…accettate di confrontarVi pubblicamente ed evitate, per l’amor di Dio di chiederVi se siamo pro o contro qualcuno…noi siamo per il bene della nostra Società e, di riflesso, quello di Grosseto e dei Grossetani…cose che non appartengono al vostro misero bagaglio>>.


















Questo è il vero Simone Ceri….Premesso che la questione sponsorizzazione ilco non mi è piaciuta molto ma bisogna dire che i Ceri hanno presentato un progetto fantastico, un vanto per l’ intera città con proprie risorse….cosa devono fare?invece di essere agevolati ogni scusa è buona per interrompere il progetto.Roba da pazzi!!!!!io credo che nonostante tutta la passione che ci mettono la delusione, la rabbia e lo schifo li porterà a smettere di investire nel calcio ed è un peccato, anche perché penso che il progetto sarà bloccato almeno fino alle nuove elezioni.
Secondo me, invece, a causa di tutte le difficoltà avute, il rischio è di veder andare i Ceri a investire altrove!
Incoscienti, avete fatto scatenare la bestia che era solita in Simone. Ora sono cazzi vostri.
Tranquillo che non smetteranno di investire…..non lo faranno a Grosseto……perchè le nostre sanguisughe sono troppo attaccate alle poltrone ed ai loro sporchi interessi che non hanno intenzione di prendere una decisione….però di promesse ne fanno a centinaia sia con i privati che con i cittadini che poi puntualmente non sono mantenute…..La vicenda Ceri insieme a quella dell’FC Grosseto di Max Pincione sono solo gli ultimi due esempi eclatanti di immobilismo che ha contraddistinto questa amministrazione per 10 anni e che, mi auguro di no, porterà ad investire altrove in progetti calcistici e non solo che avrebbero solamente dato vanto alla città intera….il passato ritorna e se tre i esempi agli occhi di tutti (Camilli,Pincione,Ceri) non fanno capire che qualcosa non va da parte degli Enti………dove si vuole andare? Magari i Ceri a Follonica dove sono pronti ad accoglierli a braccia aperte, magari Pincione in qualche zona del Sud e Camilli già sappiamo dove sta!!! Maggio e’ alle porte…..pensiamo bene a quale strada prendere…..! Basta guardare in che stato è Grosseto…un tempo oasi felice ed ora distrutta sotto ogni aspetto….Maremma impestata!!!
Bravo Simone…questa città è rimasta indietro di 20 anni….e chi cerca di fare qualcosa di diverso viene subito stroncato….peggio dei paesi dell’Est negli anni 70…
Adesso c’è ancora qualcuno che pensa che il Camilli sia un pecoraio ? Vergognatevi e chiedete scusa.
Se il Ceri e Camilli si uniscono so ca…i per tutti.
Sempre e solo forza Grosseto… e domani tutti ad Ostia banda di leggere.
Prima deve chiedere scusa lui ai tifosi e ai grossetani per come li ha sempre definiti, quindi il termine pecoraio si adatta al suo modo di colloquiare
chiedere scusa…… perchè ti ha fatto conoscere palcoscenici che mai noialtri avremo pensato ? Via su !!! Non c’è un Presidente che nel corso della propria carica abbia manifestato certi attegiamenti verso i tifosi….
contento te!
A Massa Marittima siamo disponibili!! Un campo da ristrutturare e rendere sintetico e il rifacimento dello stadio già approvato!! 🙂
A Massa marittima siamo disponibili. Le strutture ci sono; il rifacimento dello stadio già approvato e un secondo campo in disuso ma pronto per renderlo sintetico
Da sempre funziona così. O sei dentro la politica e fai affari o sei fuori. Non ci sono alternative.
Quì il problema gravissimo, è dettato purtroppo dalla incoerenza e unione di intenti da parte di tecnici e addetti ai lavori.Se effettivamente qualche mese fa,era tutto pianificato per la realizzazione di tali impianti,cosa è successo in questo brevissimo tempo?La cosa ancora più strana,è che non si riesce mai,e dico mai a capire effettivamente qual è la verità.Se come in questo caso c è un danno, di chi è la colpa?Quando non emerge la verità,tutti e ripeto tutti dobbiamo fare molta attenzione sulle scelte e pareri che esprimeremo.Quì,più che la politica,la cosa più raccapricciante che emerge,è in relazione alla mediocrità intellettiva di gente, che anzichè tentare di trovare soluzioni per dare slancio all economia,creare posti di lavoro ecc,rimane ferma in attesa di chissà cosa.Ma è mai possibile,che non si capisca, che creare impianti sportivi,lanciare società a livelli che forse non siamo abituati a vedere,significa arricchire tutto l indotto,avere anche la possibilità di creare qualche opportunità per qualche nostro figliolo.Comunque,ciò,è figlio di chi non ha fame e voglia di emergere.Non è questione di destra,sinistra ecc,è il risultato di chi non ha mai fatto la gavetta sotto nessun punto di vista.Le polemiche di Camilli,Pincione,Ceri,lo stato in cui versa la Città,la carenza di servizi,i comitati per la Sicurezza,una Città paralizzata per una semplice corsa di bici ,e non ultimo il grave Pasticcio del Peep Pizzetti,sono tutti argomenti che devono far riflettere.Peccato,che le persone anziane o con parecchi anni sulle spalle tutte queste cose non le seguono.In ogni caso,per una piccola parentesi su Camilli e i vari intoppi tra quest ultimo e l Amministrazione Comunale,ricordo in piena umiltà che una giornata come quella della trasferta a Padova con quella curva di tifosi e quella festa,penso che non dobbiamo dimenticarla,e soprattutto sarà difficile riviverla,dato quello che leggiamo.Saluti e auguri a tutti.
Borghi si spiega e fa chiarezza.Ma cosa ha spiegato?